Sua casa dos sonhos está aqui.

Imagine viver em uma casa projetada para transformar sua vida. Um lar que reúne conforto e aconchego, para recepcionar seus familiares e amigos. Um espaço com design moderno e prático para facilitar seus dias. Uma moradia com custo benefício excelente onde você ganha agilidade na execução.

Nossa experiência de 20 anos na indústria Metalúrgica nos inpulsionam a criar algo único com qualidade nas casas que estamos LANÇANDO. Oferecemos uma solução que combina modernidade, praticidade, resistência e estilo.

Nossas casas metálicas utilizam engenharia inovadora para garantir rapidez na construção, segurança e o melhor custo-benefício para você.

Nossa galeria

Ambientes que convidam a ficar.

Cada projeto foi pensado para atender diferentes estilos de vida e necessidades, do compacto e funcional ao sofisticado e espaçoso, você encontrará o modelo perfeito para o seu momento.

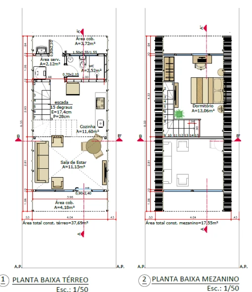
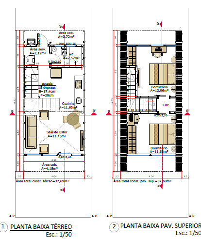
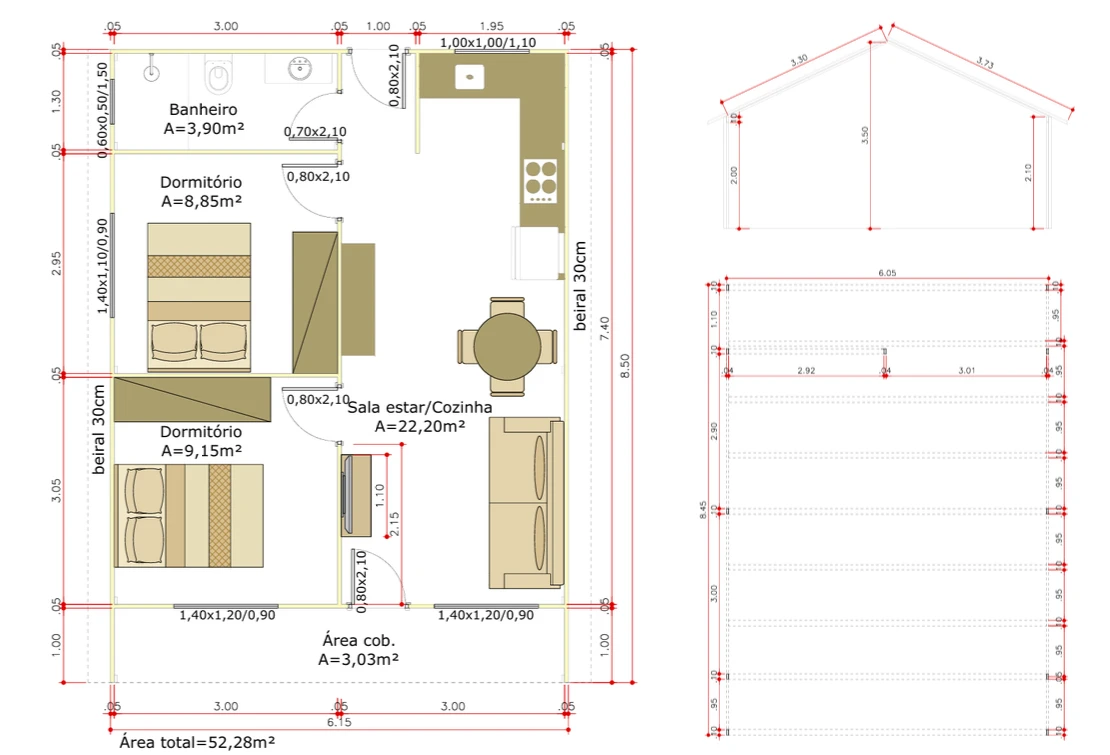
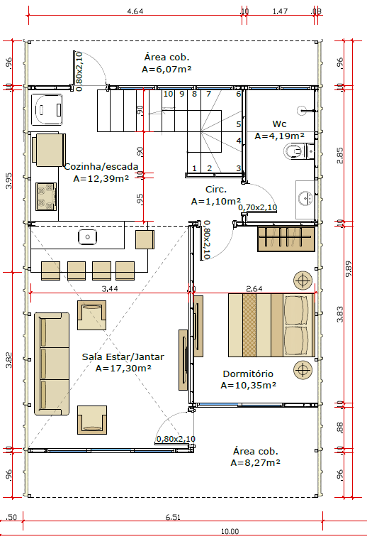
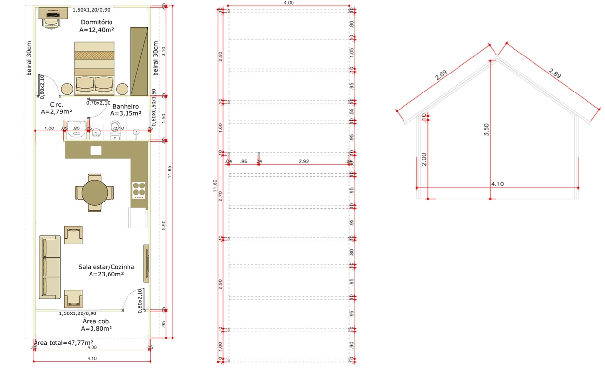
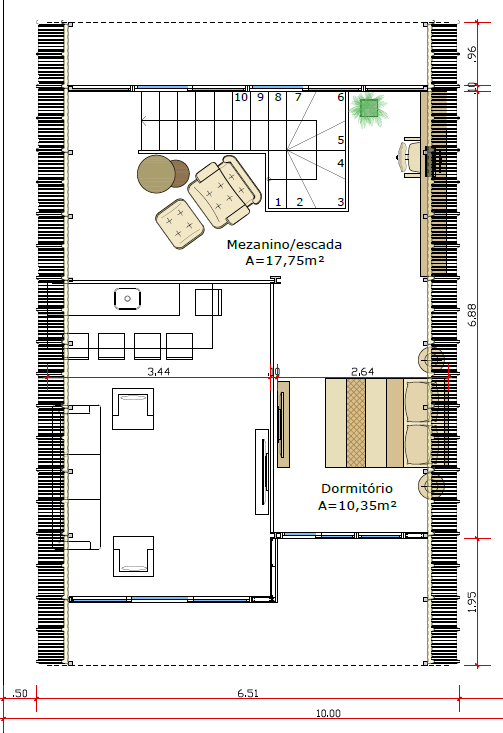
Espaços na medida do seu sonho.

Nossas plantas arquitetônicas são projetadas para unir inovação, funcionalidade e elegância, oferecendo o máximo de conforto e praticidade em cada detalhe

Realize o sonho da casa perfeita: para morar, alugar ou transformar seu negócio!

Chegou a hora de viver com conforto e elegância a um preço acessível. Escolha um de nossos modelos de casas metálicas e conquiste o lar que sua família merece.

Preencha o formulário e conheça nossos melhores modelos.

Preencha o formulário para mais informações.

Seus dados estão seguros de acordo com nossas políticas.

Endereço

Boa Vista - São Lourenço do Sul, RS

Telefone

+55 (53) 99932-9022

© Copyright 2025 Morales Indústria Metalúrgica | Todos os direitos reservados.